We work on a variety of projects; from small home extensions to new builds and interior design. Below is a selection of some of our most recent work.
Fishergate
Kitchen extension and refurbishment
Single story rear extension to a period terrace house in York creating a contemporary kitchen and living space. The extension is clad in corrugated steel to give a sleek, simple finish; contrasting with the existing brickwork.
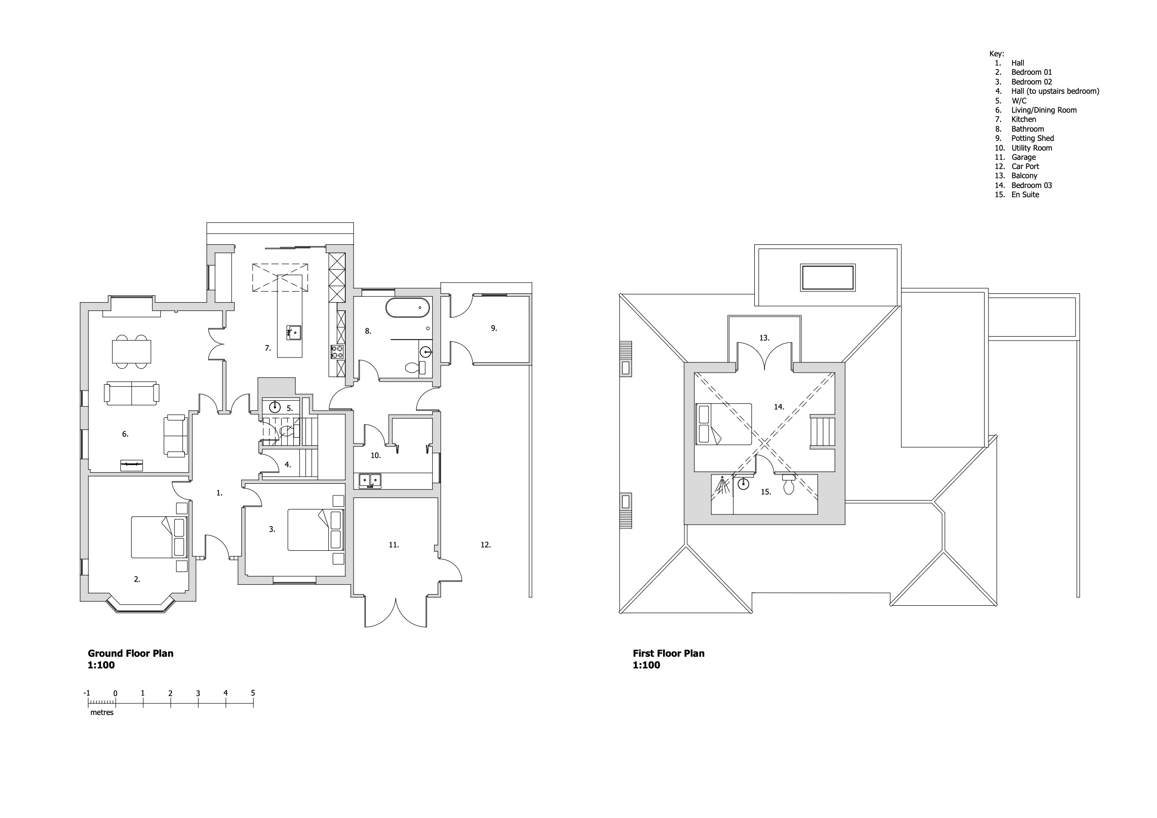
Cheshire
Loft conversion and extension
Extension and refurbishment of a bungalow into a spacious family home, making the most of the countryside views to the rear.



RIBA Chartered Architect based in the city of York, North Yorkshire.
Images & text © StudioRework 2021
- Extensions
- Conversions
- New Builds
- Planning applications
- Home Improvement
- Interior Design
elliott@studiorework.co.uk
07858217673






